We offer over 75 predesigned log home floor plans.

Find Your Dream Home
1-866-LOG-HOME

(1-866-564-4663)

Custom Brewster

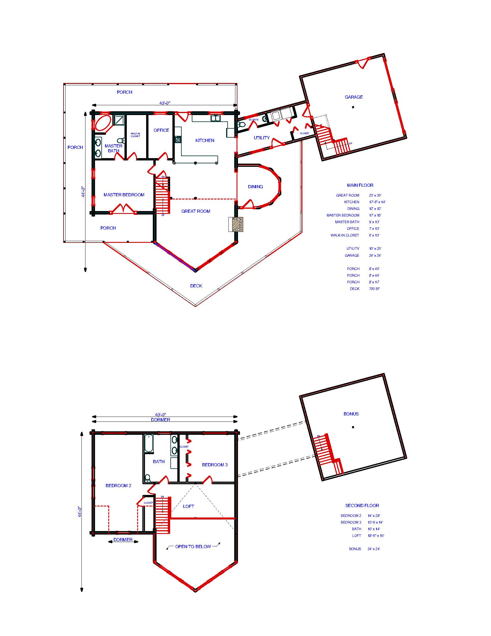
Custom Brewster Floor Plan

2018 NAHB Building Systems Council Log Home Design Winner

 

Space abounds in the Custom Brewster design. This home offers all the features that make log home living so warm inviting. The open floor plan and spectacular great room beamed cathedral ceiling offer expansive glass to view the scenic pastoral setting. A huge island anchors the fully equipped kitchen with bar seating and is adjacent to a huge separate dining room. The first floor master bedroom has an adjoining master bath and walk in closet. Upstairs two additional bedrooms, bath, and loft overlook below. Smart traffic flow pattern keeps things moving and there are many opportunities for outdoor relaxation on the ample porches and decks.

Floor Plan Details

Main Floor: 1850 sq. ft.

Second Floor: 910 sq. ft.

Total: 2760 sq.ft. 

Garage: 576sq. ft.

Take the First Steps Towards Your Log Home Vision

Nothing compares to that first moment you step across the threshold of your new log home for the first time. The journey starts here.

Floor Plans Icon

Clarify Your Goals

We start by understanding the scale of your project and helping you align your vision with your budget.

Paint Roller Icon

Design Your Home

Next comes the really fun part. We’ll collaborate with you on a floor plan design and make it your own.

Key Icon

Bring It to Life

We’ll deliver all the materials on-site and clearly marked to ensure a successful build. Afterwards, we stay in touch to make sure you have everything you need.

Find Inspiration for Your Log Home

Explore our collection of homes with an array of different styles and layouts to get an idea of what we can create for you.